卓展購物美食城餐飲裝修工程
| 項目名稱 | 卓展購物美食城餐飲裝修工程 | 行業屬性 | 酒店/餐飲/會所 |
| 項目地址 | 北京海淀區五棵松卓展購物中心 | 項目造價 | 38.5萬 |
| 主關鍵詞 |
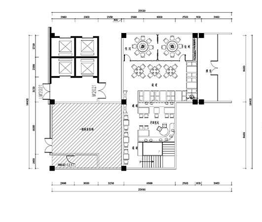
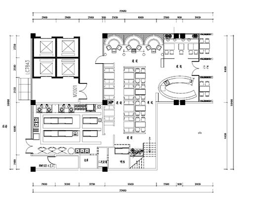
▄原建筑結構分析: 這個案例位于北京,項目面積為500平方米。甲方將消費群體定位在有一定品位的人群上,為了保證店面的裝修品質,提高裝修檔次,我們在商議后采用了簡歐風格進行了裝修設計。
▄設計需求: 設計師利用一樓與二樓不同的空間,進行了不同的空間功能規劃,有效的提高了空間的利用率,使整個空間的裝修設計更為出色。
▄設計風格定位: 設計師在餐廳裝修設計上大量使用了香檳色、白色和黑色,以歐式風格的設計元素為基本設計元素貫穿整個餐廳,在墻壁上采用了大幅的畫作進行裝飾點綴。


北京鑄誠大廈辦公裝修工程
北京銀河SOHO辦公裝修工程
301醫院裝修工程
