望京韓國料理餐飲裝修工程
| 項目名稱 | 望京韓國料理餐飲裝修工程 | 行業(yè)屬性 | 酒店/餐飲/會所 |
| 項目地址 | 朝陽區(qū)湖光中街 | 項目造價 | 19.0萬 |
| 主關鍵詞 |
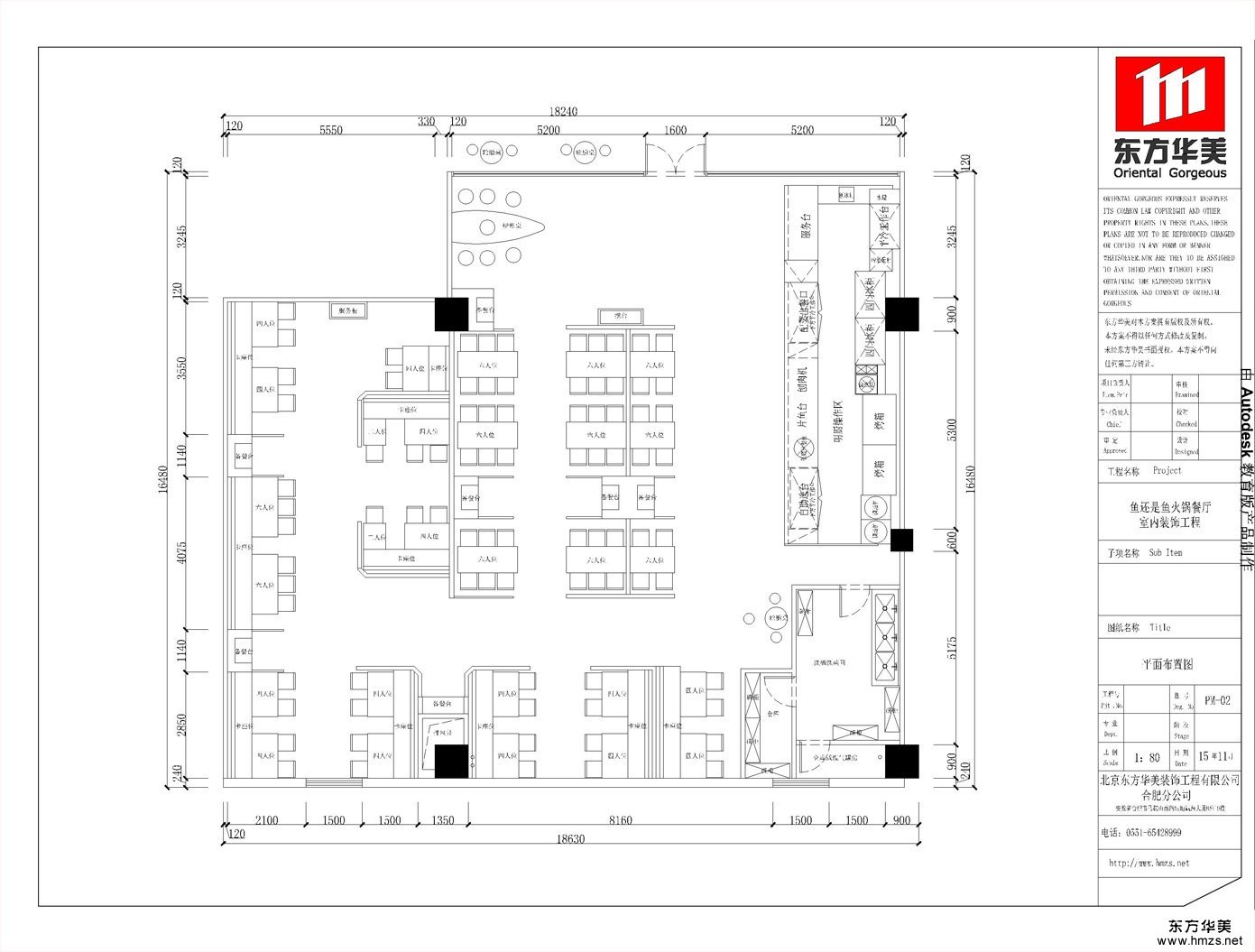
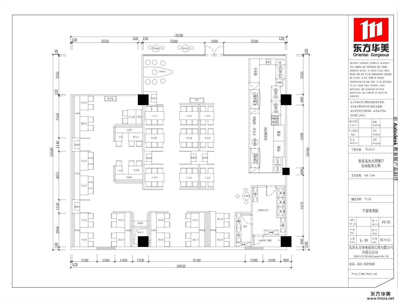
▄原建筑結構分析: 韓國料理是一家韓國料理店,設計師在設計本案時選用大量的紅磚和木飾面作為裝飾,為空間帶來了更多的自然清新的氣息,營造了一種悠然舒適的氛圍,打造了適宜人們就餐的環(huán)境。
▄設計需求: 本案為望京韓國料理的裝修設計,是一家韓國餐廳料理店,采用紅色木質窗戶和木飾面裝修作為門頭,讓該店內享用美食的客人可以很好的看到外面的風景,同時也可以讓外面的行人看到店內美味的食物,刺激眾人的食欲。
▄設計風格定位: 韓國料理是一家韓國料理店,設計師在設計本案時選用大量的紅磚和木飾面作為裝飾,為空間帶來了更多的自然清新的氣息,營造了一種悠然舒適的氛圍,打造了適宜人們就餐的環(huán)境。


北京鑄誠大廈辦公裝修工程
北京銀河SOHO辦公裝修工程
301醫(yī)院裝修工程
