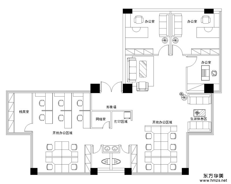
合肥蔚藍商務港律師事務所辦公項目
| 項目名稱 | 合肥蔚藍商務港律師事務所辦公項目 | 行業屬性 | 金融/國企/事業機構 |
| 項目地址 | 合肥政務區蔚藍商務港 | 項目造價 | 70.4萬 |
| 主關鍵詞 |
▄原建筑結構分析: LOFT的消費群體:LOFT是同時支持商住兩用的樓型,所以主要消費群體包括個性上的和功能上的。作為功能上的考慮,適合比較需要空間高度的,比如電視臺演播廳、公司產品展示廳等;作為個性上的考慮,許多時追求時尚的年輕人以及藝術家都是LOFT的消費群體,甚至包括一些有特色的企業。
▄設計需求: LOFT的空間有非常大的靈活性,人們可以讓空間完全開,也可以對其分割,從而使它蘊涵個性化的審美情趣。從此,粗糙的柱壁,灰暗的水泥地面,裸露的鋼結構已經脫離了舊倉庫的代名詞,一間間其貌不揚的舊式廠房里,一股新的氣息正在涌動,這就是LOFT生活。LOFT的辦公空間使居者即使在繁華的都市中,也仍然能感受到身處郊野時那樣不羈的自由。
▄設計風格定位: 此案例結合LOFT及工業風,辦公室設計主題 “靈透之材,蓬勃之勢”為主題,本案就其“鋼之靈透”,用象征化的表現手法,多元化的設計元素,力求整體風格與整棟大樓協調、清新、大氣的外觀設計保持一致,企業氣質內外渾然一體,展現出富有深刻內涵的視覺空間及該企業獨特的個性與特點,將機械制造行業復蘇這一時代特性滲透于整個空間,既突顯陽剛的機械制造企業特質,又蘊涵貴公司新興而極具沖擊力的蓬勃發展之勢!


北京鑄誠大廈辦公裝修工程
北京銀河SOHO辦公裝修工程
301醫院裝修工程
