韓式料理餐飲裝修工程
| 項目名稱 | 韓式料理餐飲裝修工程 | 行業屬性 | 酒店/餐飲/會所 |
| 項目地址 | 江蘇省南京市江寧區力行路 | 項目造價 | 29.6萬 |
| 主關鍵詞 |
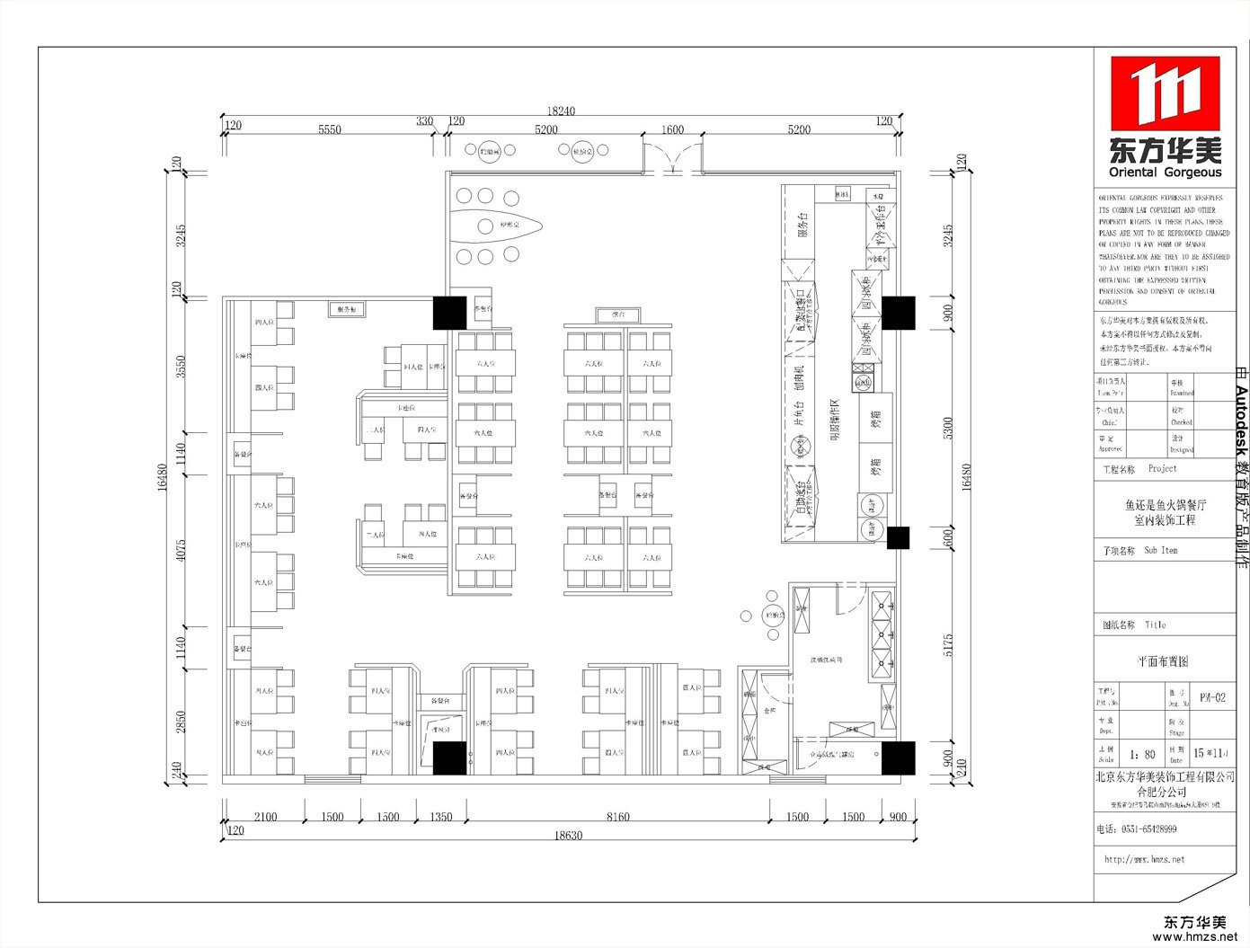
▄原建筑結構分析: 本項目為韓式料理餐廳,面積為385平米,設計師運用韓國文化的語言和元素來表現用餐的場景,并且專注時空的統一性以及延展性,既有一定的功能性,又有連貫整個空間主題的效果,創造出現代簡樸、個性鮮明、極具變換的韓式就餐氛圍。
▄設計需求: 設計師運用日本文化的語言和元素來表現現實的場景,并且專注時空的統一性以及延續性,并且運用拼貼的手法提取出了韓式柵格門的分隔樣式,一氣呵成的打造出來,并且有不會使之落入俗套。
▄設計風格定位: 設計為客人提供了一種幽靜和清新的空間,使人有種身臨其境的感覺,盡享清新與浪漫。所用材料中的竹子、木條等細節的裝飾元素,既有一定的功能性,又有連貫整個空間主題的效果,在其中加入戲劇化的燈光效果,創造出現代簡樸,個性鮮明,喜劇變換的禪式氛圍的就餐空間。


北京鑄誠大廈辦公裝修工程
北京銀河SOHO辦公裝修工程
301醫院裝修工程
