興錦源網絡有限公司工程
| 項目名稱 | 興錦源網絡有限公司工程 | 行業屬性 | 互聯網/電商/科技 |
| 項目地址 | 南京市山西路8號 | 項目造價 | 49.6萬 |
| 主關鍵詞 |
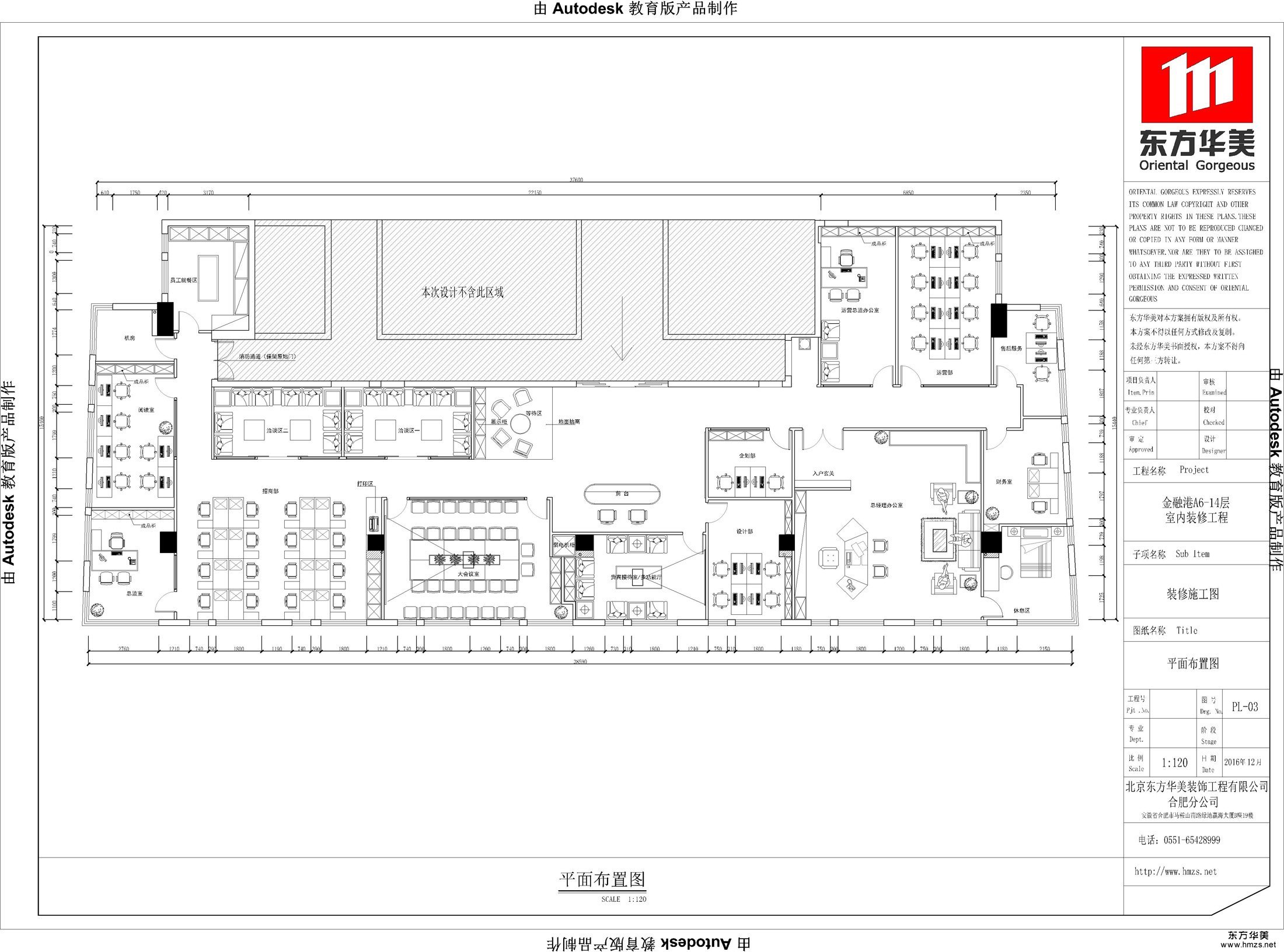
▄原建筑結構分析: 該方案為一個網絡公司,甲方比較傾向于簡單現代的辦公空間,很傳統的裝修風格。因此設計師整體裝修體現現代的建筑風格,采用了傳統的木作體現搭配上現代的裝飾效果,突出公司的特點。設計師的設計方案簡潔明了,時尚大方,綜合運用了LOFT和現代的元素合并在了一起,打造了一個簡約、嚴謹、時尚、辦公的整體辦公空間。
▄設計需求: 此方案整體設計簡潔明了,時尚大方,綜合運用了LOFT和現代的元素合并在了一起,用傳統的材料分別體現在了不同的墻面,尤其是前廳形象墻,以一種放射狀的拼磚工藝構造而成,給人體的視覺帶來了空間的拓展,所以我們的所有辦公氛圍環繞在一個德國的簡約、嚴謹、時尚、辦公的整體辦公空間里。
▄設計風格定位: 設計師的設計方案簡潔明了,時尚大方,綜合運用了LOFT和現代的元素合并在了一起,打造了一個簡約、嚴謹、時尚、辦公的整體辦公空間。


北京鑄誠大廈辦公裝修工程
北京銀河SOHO辦公裝修工程
301醫院裝修工程
