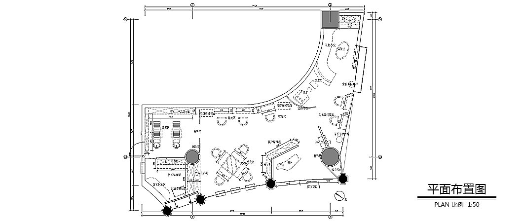
高端美容裝修工程
| 項目名稱 | 高端美容裝修工程 | 行業屬性 | 其他 |
| 項目地址 | 南京市長白街普華巷11號 | 項目造價 | 14.7萬 |
| 主關鍵詞 |
▄原建筑結構分析: 本案設計以時尚簡約手法為主,構造高雅、華貴的美容空間,設計師為給顧客打造一種舒適華麗的環境,色彩上以紫色系為主調,通過適當的軟裝和頂部藍色的吊頂,營造一種神秘的氛圍。
▄設計需求: 設計師為給顧客打造一種舒適華麗的環境,色彩上以紫色系為主調,通過適當的軟裝和頂部藍色的吊頂,營造一種神秘的氛圍。
▄設計風格定位: 本案設計以時尚簡約手法為主,構造高雅、華貴的美容空間,設計師為給顧客打造一種舒適華麗的環境


北京鑄誠大廈辦公裝修工程
北京銀河SOHO辦公裝修工程
301醫院裝修工程
